Malkų katilai – ekonomiškas, patikimas ir tradicinis šildymas namams ir verslui
Malkų katilai – ekonomiškas, patikimas ir tradicinis šildymas namams ir verslui
Šildymas malkomis išlieka viena stabiliausių ir ekonomiškai pagrįstų sprendimų namų ūkiams. Kintant energijos kainoms ir esant rinkos neapibrėžtumui, daugelis namų savininkų ir didesnių objektų savininkų ieško patikimos sistemos, kuri suteiktų didelį efektyvumą, prognozuojamas sąnaudas ir ilgalaikį veikimą. Būtent todėl Malkų katilai vis dar užima svarbią vietą tarp pageidaujamų šildymo sprendimų.
Šio tipo šildymas pasižymi aukštu efektyvumu, kai tinkamai parenkama galia ir teisingai įrengiama instaliacija. Papildomas privalumas – medienos prieinamumas daugelyje regionų, todėl lengviau planuoti eksploatacines išlaidas. Tinkamai prižiūrint ir naudojant, malkų katilas gali užtikrinti stabilų šildymą daugelį metų be sudėtingos automatikos ar brangios infrastruktūros.
.png)
Kas yra malkų katilas
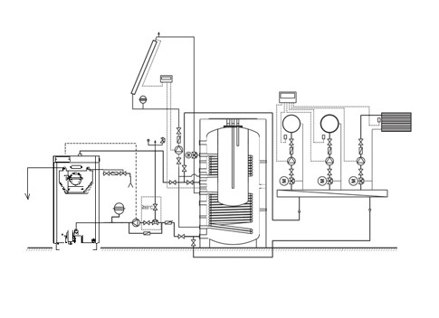
Malkų katilas – tai šildymo prietaisas centrinės šildymo sistemos vandeniui šildyti, naudojant kietą kurą (malkas). Įkaitintas vanduo cirkuliuoja vamzdynų sistemoje į radiatorius arba grindinį šildymą, užtikrindamas tolygią temperatūrą visame pastate.
Skirtingai nei įprasti krosnys ar židiniai, katilas skirtas šildyti visą namą ar patalpą, o ne tik vieną kambarį. Jis veikia kaip pagrindinis šilumos šaltinis ir gali būti derinamas su buferiniu baku didesniam efektyvumui ir retesniam pakrovimui. Priklausomai nuo modelio ir konstrukcijos, katilai gali pasiūlyti skirtingą efektyvumo ir degimo kontrolės lygį. Modernūs sprendimai optimizuoja medienos degimą ir sumažina šilumos nuostolius, todėl jie tinkami tiek naujiems pastatams, tiek esamų šildymo sistemų atnaujinimui.

Kaip veikia malkų katilas
Malkų katilų veikimo principas pagrįstas kieto kuro degimu ir pagamintos šilumos perdavimu vandens apvalkale (šilumokaičio). Uždegus malkas, išskiriama šiluma naudojama vandeniui katilo viduje įkaitinti. Cirkuliacinis siurblys paskirsto karštą vandenį šildymo sistemai, po to atvėsęs vanduo grįžta į katilą pakartotiniam įkaitinimui.
Modernius modelius galima suskirstyti į kelis pagrindinius tipus:
- Standartiniai katilai su natūralia trauka
- Katilai su ventiliatoriumi priverstinei traukai
- Pirolizės (dujiniai) katilai su didesniu efektyvumu
Pirolizės katilai užtikrina pilnesnį medienos dujų degimą, todėl mažėja kuro sąnaudos ir išmetamųjų teršalų kiekis.


Tinkamos malkų katilų panaudojimo sritys
Malkų katilai tinka objektams, turintiems vandeniu šildomą sistemą. Jie dažniausiai naudojami:
- Vieno buto namuose
- Vilos ir kaimo sodybos
- Mažuose daugiabučiuose
- Dirbtuvėse ir sandėliuose
- Pramoninėse halėse
- Viešuosiuose pastatuose ne dujifikuotuose rajonuose
Ypač efektyvūs regionuose, kur medieną galima lengvai gauti ir ji yra ekonomiškai prieinama.
Kaip pasirinkti tinkamą galingumą
Tinkamo galingumo pasirinkimas yra vienas svarbiausių veiksnių perkant katilą. Nepakankama galia nesuteiks tinkamo komforto, o per didelė galia lemia neefektyvų veikimą ir nereikalingą kuro suvartojimą.
Nustatant reikiamą galingumą atsižvelgiama į šiuos veiksnius:
- Bendras grindų plotas
- Lubų aukštis
- Šilumos izoliacija
- Langų ir durų tipas
- Klimato zona
Bendra gairė: 1 kW galios gali šildyti apie 10 m² gerai izoliuoto ploto su standartiniu lubų aukščiu. Pavyzdžiui, 150 m² namui dažniausiai rekomenduojamas katilas su galia tarp 15 ir 20 kW.
Pagrindiniai malkų katilų privalumai
Malkų katilai yra pageidaujami dėl kelių pagrindinių privalumų. Jie suteikia ekonomišką šildymą ir ilgą tarnavimo laiką, ypač pagaminti iš aukštos kokybės plieno.
Pagrindiniai privalumai:
- Žemos kuro sąnaudos
- Aukšta šildymo galia
- Tinka didelėms erdvėms
- Santykinė nepriklausomybė nuo energijos tiekėjų
- Mažesnės pradinės investicijos, palyginti su automatizuotomis sistemomis, tokiomis kaip Granuliniai katilai ar pilnais Granulinių rinkinių
Trūkumai, į kuriuos verta atkreipti dėmesį
Nepaisant privalumų, malkų katilai reikalauja daugiau naudotojo įsitraukimo. Jie nėra visiškai automatiniai ir reikia reguliariai prižiūrėti.
Pagrindiniai trūkumai:
- Rankinis kuro pakrovimas
- Reikalinga malkų sandėliavimo vieta
- Periodinis pelenų valymas
- Mažesnis komforto lygis, palyginti su granuliniais sprendimais, tokiais kaip Granulinės krosnelės su vandens kontūru
Skirtumas tarp malkų katilų ir granulinio kuro katilų
Granuliniai katilai yra moderni tradicinių Malkų katilų sistemų alternatyva. Pagrindinis skirtumas yra automatizacijos lygis ir kuro tiekimo būdas.
Malkų katilas užkraunamas rankiniu būdu ir reikalauja nuolatinio stebėjimo. Pradinės investicijos dažniausiai yra mažesnės, o kuras dažnai pigesnis ir lengviau prieinamas.
Granulinis katilas turi automatinį kuro tiekimą, elektroninę kontrolę ir programuojamus darbo režimus. Tai suteikia didesnį komfortą ir tikslesnę temperatūros kontrolę, tačiau pradinė investicija yra didesnė.
Pasirinkimas tarp šių dviejų variantų priklauso nuo biudžeto, pageidaujamo automatizacijos lygio ir kuro prieinamumo konkrečiame regione.
Skirtumas tarp malkų katilo ir granulinės krosnelės su vandens kontūru
Granulinė krosnelė su vandens kontūru taip pat gali būti prijungta prie šildymo sistemos, tačiau dažniausiai turi mažesnę galią ir daugiausia derina šildymą su dekoratyvine funkcija.
Malkų katilas skirtas pirmiausia nuolatiniam ir efektyviam viso pastato šildymui, siūlant didesnę galią ir geresnį efektyvumą ilgalaikio naudojimo metu.
Į ką atkreipti dėmesį prieš pirkimą
Prieš priimant galutinį sprendimą, svarbu atkreipti dėmesį į technines specifikacijas ir gaminio kokybę.
Pagrindiniai parametrai, į kuriuos verta atsižvelgti:
- Nominali galia (kW)
- Efektyvumas (šiluminis efektyvumas)
- Plieno storis
- Degimo kameros tipas
- Ventiliatoriaus buvimas
- Suderinamumas su buferiniu baku
- Garantijos sąlygos ir aptarnavimas
Kokios malkos yra tinkamiausios
Malkų katilo efektyvumas priklauso ne tik nuo modelio, bet ir nuo naudojamo kuro kokybės. Geriausi rezultatai pasiekiami naudojant sausas, kietas medienos rūšis, tokias kaip:
- Bukmedis
- Gluosnis
Malkų drėgmė turėtų būti mažesnė nei 20%, nes drėgna mediena sumažina efektyvumą ir didina suodžių susidarymą.

Dažniausiai užduodami klausimai (DUK)
Kaip dažnai reikia krauti malkų katilą?
Paprastai pakrovimas reikalingas kas 3–6 valandas, priklausomai nuo katilo galios, lauko temperatūros ir pastato izoliacijos.
Ar malkų katilas gali veikti be elektros?
Kai kurie modeliai su natūralia cirkuliacija gali veikti be elektros, tačiau dauguma sistemų naudoja cirkuliacinį siurblį ir reikalauja elektros tiekimo.
Ar reikalingas specialus kaminas?
Taip, tinkamai parinktas kaminas yra būtinas gerai traukai ir saugiam sistemos veikimui.
Koks katilo tarnavimo laikas?
Tinkamai prižiūrimas katilas gali veikti nuo 10 iki 20 metų.
Kiek malkų reikia vienam šildymo sezonui?
Vidutiniškai 120–150 m² namui reikia nuo 8 iki 15 kubinių metrų malkų, priklausomai nuo izoliacijos kokybės ir klimato sąlygų.
Malkų katilai išlieka praktišku ir ekonomišku šildymo sprendimu, ypač regionuose be dujų infrastruktūros. Jie užtikrina didelę galią ir santykinai mažas eksploatacines išlaidas, tačiau reikalauja daugiau naudotojo įsitraukimo.
Tinkamas pasirinkimas priklauso nuo objekto dydžio, turimo biudžeto ir pageidaujamo komforto lygio. Tinkamai parinktas ir profesionaliai įrengtas malkų katilas gali patikimai šildyti daugelį metų.
Taip pat žiūrėkite:



